News Flash Home
The original item was published from 9/12/2019 7:37:06 PM to 9/13/2020 12:00:00 AM.

News Flash

Press Release

Posted on: September 12, 2019

[ARCHIVED] City of San Luis Receives Grant for Senior Center Expansion

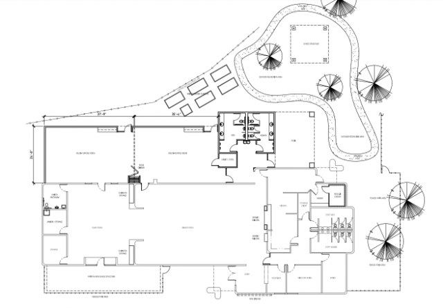
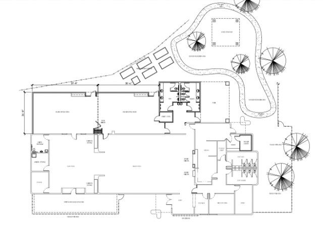
senior center conceptual

San Luis, Arizona – The City of San Luis has received $459,764.00 in Federal Community Development Block Grant (CDBG) funds from the Arizona Department of Housing to complete the San Luis Senior Expansion.

The San Luis Senior Center expansion will add a 2,880 square feet in space allowing the center to expand its multi-purpose rooms, add restrooms and remodel the 3,200 square feet of existing interior space.

Interior remodel entails, reconfiguration of the interior front entrance, fresh paint and expandable room dividers to buffer sound for multiple activities, events, and meetings held at the San Luis Senior Center.

Back in April 2019, the City of San Luis applied for the Arizona Department of Housing for Regional Account Community Development Block Grant funds for the Senior Center Expansion Project. That same month, the San Luis City Council approved to commit to matching funding to allocate for the construction and other amenities associated with the project.

“The San Luis Senior Center expansion has been in discussions within in this Administration,” stated Mayor Gerardo Sanchez. “It is such an exciting time for all of us to know the project will soon begin, we can not wait to see all the new additions,” he added.

“I can truly say it is a great success to have been awarded the funding,” stated Senior Center Manager Aracely De La Hoya. “With the increasing number of local senior residents participating daily, we are all excited to see the result of this project,” she added.

 senior center conceptual

Pictured above is the Senior Center Conceptual

For more information about this topic, or to schedule a meeting with the City of San Luis Public Affairs Office, please call us (928) 341-8520 or email us at publicrelations@sanluisaz.gov.

Facebook Twitter Email

Other News in Press Release